처리되었습니다!
목록으로

오피스텔 | 인천지방법원 2025타경508534

물건 대표 사진
법원 인천지방법원
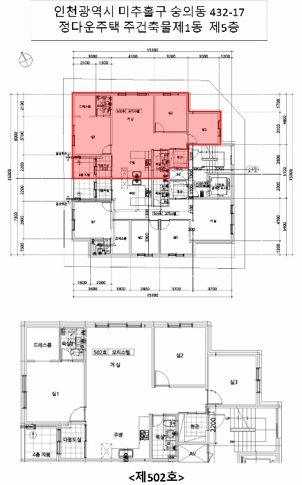
주소 인천광역시 미추홀구 숭의동 432-17 정다운주택 주건축물제1동 5층502호 [집합건물 철근콘크리트구조 84.9308㎡] 네이버 지도
감정가 310,000,000원
최저가 310,000,000원
상태 신건
감정평가요항 / 특이사항
감정평가요항표 요약 1. 구분건물감정평가요항표 1) 위치 및 주위환경 본건은 인천광역시 미추홀구 숭의동 소재 '인천중앙여자고등학교' 남측 인근에 위치하며, 주위는 업무시설, 근린생활시설, 공구상가, 오피스텔, 다세대주택, 아파트 등이 혼재하는 지대임. 2) 교통상황 본건까지 차량 접근이 가능하고 인근에 버스정류장, 수인선 지하철역 숭의역 등이 소재하여 제반 대중교통 여건은 보통임. 3) 건물의 구조 철근콘크리트구조 평지붕 지상6층 건물 내 제5층 제502호로서, 외벽 : 화강석붙임 등 마감. 창호 : 샤시 창호 등임. 4) 이용상태 업무시설(4호), 공동주택(6세대)로 이용 중임. 5) 설비내역 위생설비, 급배수설비, 난방설비, 승강기설비 등을 구비하고 있음. 6) 토지의 형상 및 이용상태 대체로 정방형인 토지로서 인접토지 및 도로와 동고평탄하며, 현황 공동주택 및 업무시설 등의 건부지로 이용 중임. 7) 인접 도로상태등 본건의 출입은 본건 북동측 및 남동측으로 약6~8미터의 도로에 접함. 8) 토지이용계획 및 제한상태 일반상업지역(2022-06-13) , 방화지구 가축사육제한구역(인천광역시 미추홀구 가축사육제한에 관한 조례[2018. 7. 1.])<가축분뇨의 관리 및 이용에 관한 법률>, 상대보호구역(인천중앙여자상업고교)<교육환경 보호에 관한 법률>, 과밀억제권역<수도권정비계획법> 9) 공부와의 차이 해당사항 없음. 10) 기타참고사항(임대관례 및 기타) 임대관계 미상임. 인근매각물건사례
AI 권리분석 (Auto)
V 3.0 Pro
회원 전용 정밀 분석
로그인하고 시작하기